Volver

Imprimir

Enviar a un amigo

Guardar como favorito

550-1-60846363484122025.jpg 550-2-60846373484122025.jpg 550-3-60846393484122025.jpg 550-4-608463103484122025.jpg 550-5-608463113484122025.jpg
Loading...

Terreno en venta Caimari

Código ID: 608463

360.000 €

Descripción

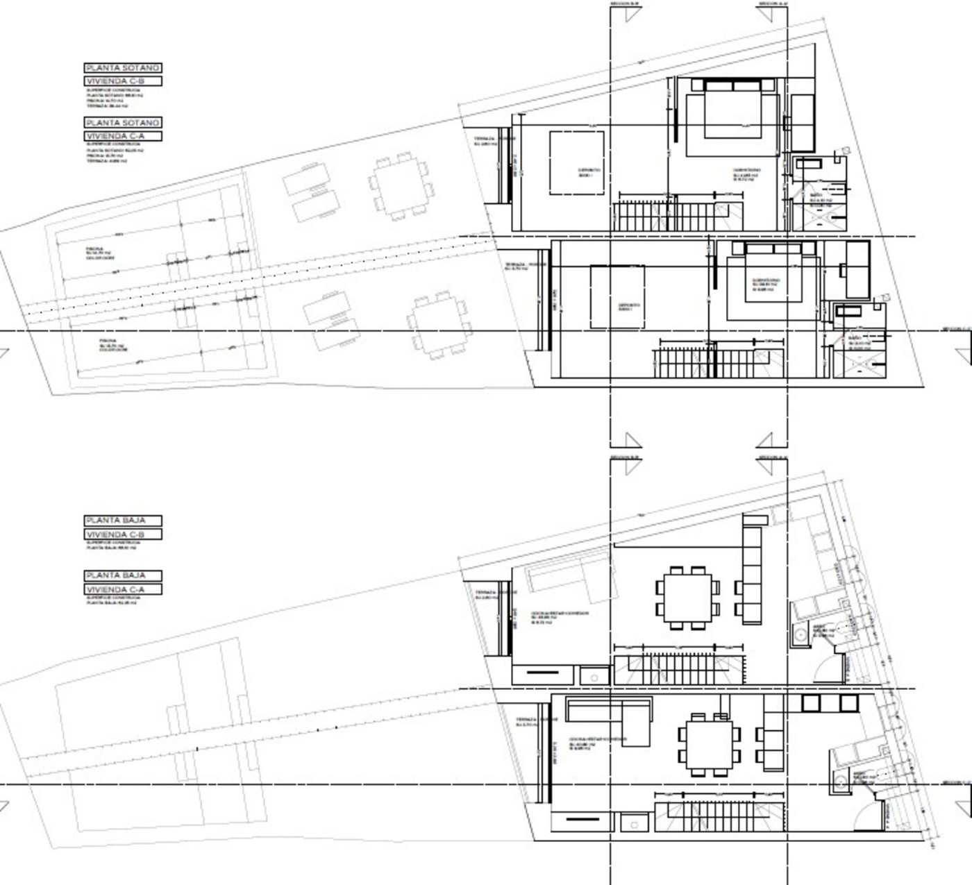
This attractive plot enjoys an elevated position in the picturesque village of Caimari, offering magnificent views of the surrounding landscape and the Tramuntana mountains. The plot is sold with a valid building licence for two independent houses, each with a living area of 192 m² including a basement, and its own private pool—ideal for relaxing during the warm summer days. Alternatively, there is also the option to build a single residence with a total constructed area of 384 m², which would also include a basement and a pool of approximately 28 m². Other features: mains water, mains electricity, elevated location. Engel & Völkers acts as an intermediary and recommends seeking professional legal and urban planning advice for this type of project.
Esta atractiva parcela goza de una posición elevada en el pintoresco pueblo de Caimari, ofreciendo unas magníficas vistas del paisaje circundante y de la Sierra de Tramuntana. El terreno se vende con una licencia de obra vigente de dos viviendas independientes, cada una con una superficie habitable de 192 m² que incluye sótano, y su propia piscina privada, ideales para relajarse en los cálidos días de verano. Sino también existe la opción de de solo una construcción total de 384 m², que incluye un sótano y una piscina de aproximadamente 28 m². Otras características: agua de red, electricidad de red, ubicación elevada. Engel & Völkers es intermediario y aconseja contratar los servicios de asesoramiento legal y urbanístico para este tipo de proyectos.
Dieses attraktive Grundstück befindet sich in erhöhter Lage im malerischen Dorf Caimari und bietet einen herrlichen Blick auf die umliegende Landschaft und das Tramuntana-Gebirge. Das Grundstück wird mit einer gültigen Baugenehmigung für zwei unabhängige Häuser verkauft, jeweils mit einer Wohnfläche von 192 m² inklusive Keller sowie einem eigenen privaten Pool – ideal zum Entspannen an warmen Sommertagen. Alternativ besteht die Möglichkeit, ein einzelnes Haus mit einer Gesamtfläche von 384 m² zu errichten, ebenfalls mit Keller und einem ca. 28 m² großen Pool. Weitere Merkmale: Stadtwasser, Stromanschluss, erhöhte Lage. Engel & Völkers tritt als Vermittler auf und empfiehlt die Hinzuziehung professioneller rechtlicher und städtebaulicher Beratung für dieses Projekt.
... más >>

Pedir más información

Hablamos:

1034 1033 1031

Información de contacto

Al clicar "Enviar" está aceptando nuestra Política de Privacidad

* = Obligatorio

Ofertante

}