Volver

Imprimir

Enviar a un amigo

Guardar como favorito

550-1-61135217074112025.jpg 550-2-61135218074112025.jpg 550-3-61135220074112025.jpg 550-4-61135221074112025.jpg 550-5-61135223074112025.jpg 550-6-61135224074112025.jpg 550-7-61135225074112025.jpg 550-8-61135225074112025.jpg
Loading...

Terreno en venta Santa Eugènia

Código ID: 611352

520.000 €

Descripción

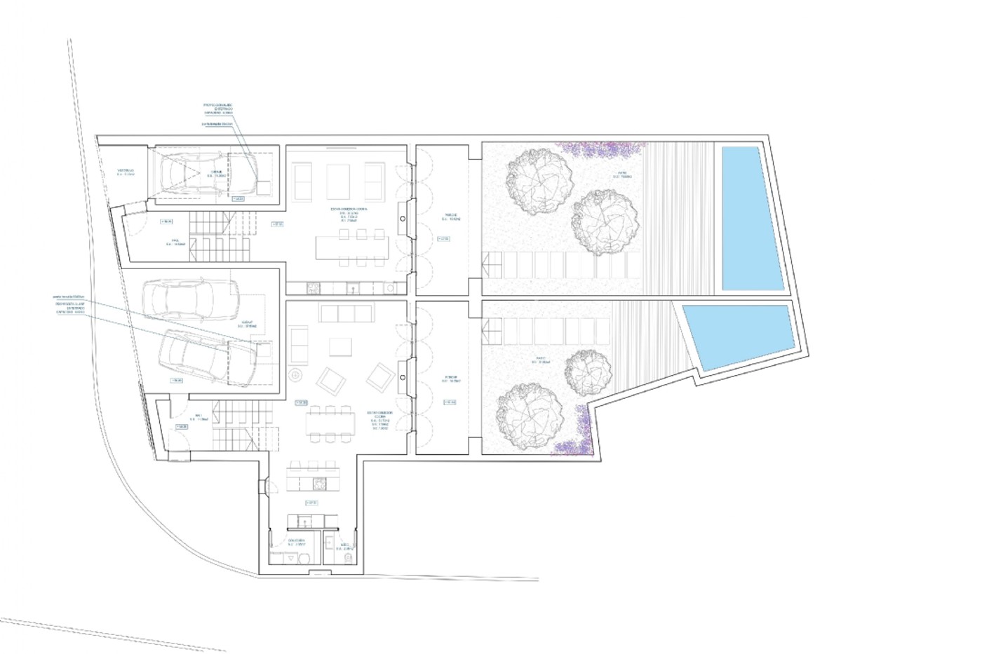
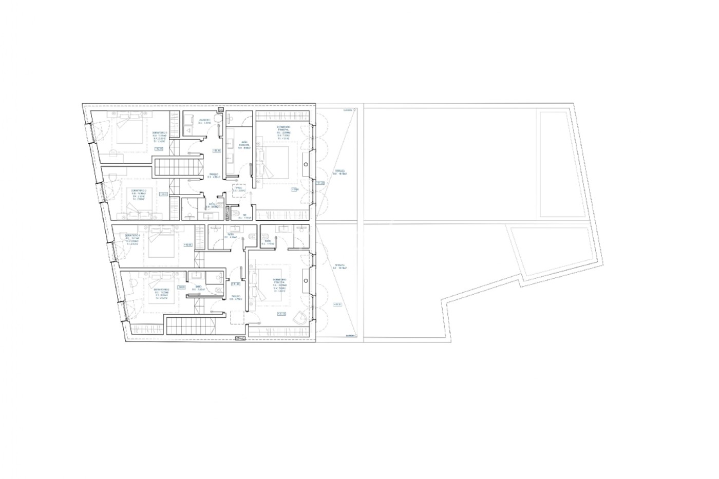
This building plot offers a magnificent view over the landscape and the Tramuntana Mountains. It is easily accessible and located in a quiet area of the municipality of Santa Eugenia. The neighboring town of Santa Maria del Camí can be reached in about 5 minutes by car, Palma in about 15 minutes by car. There is a construction project for the building of two semi-detached houses, each with a living-dining area, three bedrooms, two bathrooms, a guest toilet, and storage space. For the outdoor area with a view of the landscape and the Tramuntana Mountains, a pool is planned. One half of the house is planned with a constructed area of approx. 215m2, the other with a constructed area of approx. 241m2. The license is in process and will be issued soon. A perfect opportunity for anyone who wants to fulfill the dream of owning a property in a traditional setting with a wonderful view. Additional features: Electricity and water connection on the property, wonderful view, quiet and traditional setting, easily accessible.
Este terreno de construcción ofrece una vista maravillosa sobre el paisaje y la Sierra de Tramuntana. Es de fácil acceso y se encuentra en una zona tranquila del municipio de Santa Eugenia. La localidad vecina de Santa Maria del Camí se puede alcanzar en unos 5 minutos en coche, Palma en unos 15 minutos en coche. Existe un proyecto de construcción para dos casas adosadas, cada una con un área de estar-comedor, tres dormitorios, dos baños, un aseo de invitados y un espacio de almacenamiento. Para el área exterior, con vistas al paisaje y a la Sierra de Tramuntana, está prevista una piscina. Una de las viviendas está planeada con una superficie construida de aproximadamente 215m2, y la otra con una superficie construida de aproximadamente 241m2. La licencia está en trámite y será emitida pronto. Una oportunidad perfecta para cualquiera que desee cumplir el sueño de tener una propiedad en un entorno tradicional con vistas maravillosas. Otros detalles: conexión de electricidad y agua en el terreno, vistas maravillosas, entorno tranquilo y tradicional, de fácil acceso.
Dieses Baugrundstück bietet eine herrliche Aussicht über die Landschaft und das Tramuntana-Gebirge. Es ist leicht erreichbar und befindet sich in einem ruhigen Gebiet der Gemeinde Santa Eugenia. Der Nachbarort Santa Maria del Camí ist in etwa 5 Fahrminuten zu erreichen, Palma in etwa 15 Fahrminuten. Es liegt ein Bauprojekt für den Bau von zwei Doppelhaushälften mit je einem Wohn-Essbereich, drei Schlafzimmern, zwei Bädern, Gäste-Toilette und Abstellplatz vor. Für den Außenbereich mit Blick auf die Landschaft und das Tramuntana-Gebirge ist ein Pool vorgesehen. Eine Haushälfte ist mit einer konstruierten Fläche von ca. 215m2, das andere mit einer konstruierten Fläche von ca. 241m2 geplant. Die Lizenz ist in Bearbeitung und wird bald erteilt. Eine perfekte Gelegenheit für jeden, der sich den Traum einer eigenen Immobilie in einer traditionellen Umgebung mit wundervollem Blick erfüllen möchte. Weitere Ausstattungsmerkmale: Strom- und Wasseranschluss am Grundstück, wundervoller Blick, ruhige und traditionelle Umgebung, leicht erreichbar.
... más >>

Pedir más información

Hablamos:

1034 1033 1031

Información de contacto

Al clicar "Enviar" está aceptando nuestra Política de Privacidad

* = Obligatorio

Ofertante

}