Terug

Printen

Stuur naar een vriend

Sla op als favoriet

565-1-6136255230829122025.jpg 565-2-6136255230829122025.jpg 565-3-6136255330829122025.jpg 565-4-6136255330829122025.jpg 565-5-6136255430829122025.jpg 565-6-6136255430829122025.jpg 565-7-6136255530829122025.jpg 565-8-6136255530829122025.jpg 565-9-6136255630829122025.jpg
Loading...

Appartement te koop Hondón de las Nieves

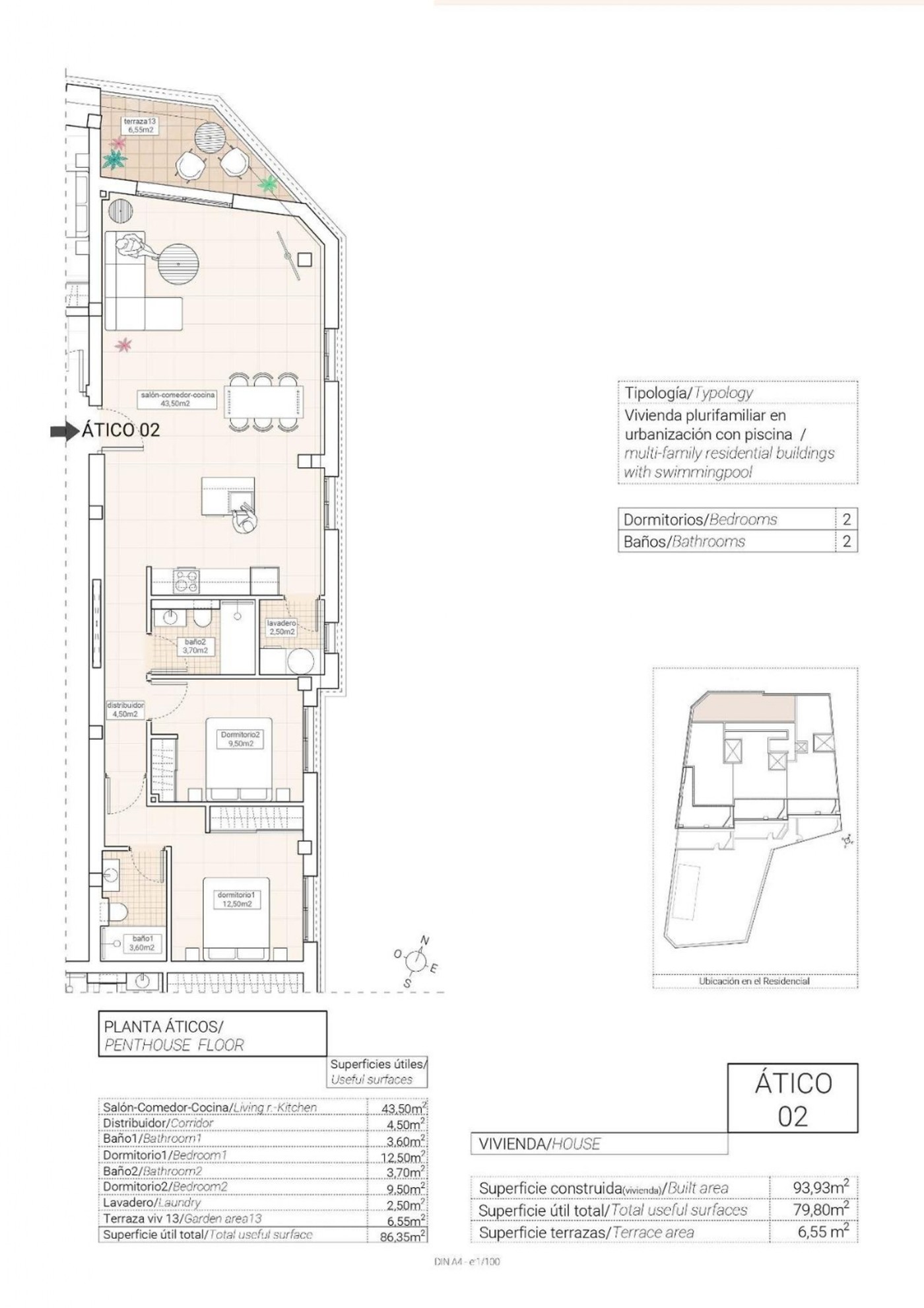
Object-ID: 613625

€ 220.000

Specificaties

Slaapkamers: 2

Badkamers: 2

Bouw: Nieuwbouw

Bebouwde oppervlakte: 93 m2

Type: Penthouse

Zwembad

Omschrijving

Exclusive New Build Apartments with Views of the Vineyards in Hondón de las Nieves Modern Homes in a Unique Natural Setting Discover this new development of flats in Hondón de las Nieves, a charming village set in a beautiful valley surrounded by olive and almond groves. This development offers 15 exclusive 2 and 3 bedroom homes, all designed to offer maximum comfort, energy efficiency and stunning views of the Vinalopó vineyards. Located in Vinalopó Medio, this peaceful enclave is ideal for those seeking a relaxed Mediterranean lifestyle, with easy access to nature and all essential services. High Quality Features and Modern Design Each flat has been designed with top quality materials and a functional layout, offering: Spacious and open-plan living spaces, ideal for modern living. Fully fitted kitchens with granite worktops. Top of the range bathrooms with built-in cisterns and top quality sanitary ware. Energy efficiency with aerothermal system for hot water. Pre-installation of ducted air conditioning, guaranteeing comfort in all seasons. Aluminium windows with double glazing, providing thermal and acoustic insulation. Reinforced security entrance door for peace of mind. Parking space and storage room in basement, included in the price. Lift in the building, ensuring accessibility and comfort. Solar panels on the rooftop to improve energy efficiency and reduce maintenance costs. In addition, the residential has a communal swimming pool, perfect for enjoying the Mediterranean climate. Privileged location in Hondón de las Nieves Hondón de las Nieves is a town with a great wine-growing tradition, famous for its table grapes with the Vinalopó denomination of origin. Surrounded by the Sierra de Crevillente, the area offers numerous hiking trails, natural areas and a rich cultural and historical offer. From your new home, you will have quick access to the main points of interest in the area: Alicante Airport - 30 km (30 minutes by car). Alicante Beaches - 35 km (35 minutes by car) Elche - 20 km (20 minutes by car) Crevillente Natural Park - 10 km (15 minutes drive) Golf Courses - 25 km (30 minutes drive) An Ideal Home on the Costa Blanca Enjoy the tranquillity of the Hondón Valley, without giving up the proximity to Alicante and Elche. Whether as a permanent residence, holiday home or investment property, these modern flats are an unbeatable choice. Contact us today for more information or to arrange a viewing.
Exclusieve nieuwbouwappartementen met uitzicht op de wijngaarden in Hondón de las Nieves Moderne woningen in een unieke natuurlijke omgeving Ontdek dit nieuwe appartementenproject in Hondón de las Nieves, een charmant dorp in een prachtige vallei omringd door olijf- en amandelboomgaarden. Dit project biedt 15 exclusieve woningen met 2 en 3 slaapkamers, allemaal ontworpen om maximaal comfort, energie-efficiëntie en een prachtig uitzicht op de wijngaarden van de Vinalopó te bieden. Deze rustige enclave ligt in Vinalopó Medio en is ideaal voor wie op zoek is naar een ontspannen mediterrane levensstijl, met gemakkelijke toegang tot de natuur en alle essentiële voorzieningen. Hoge kwaliteit en modern ontwerp Elke flat is ontworpen met materialen van topkwaliteit en een functionele lay-out, met: Ruime en open woonruimtes, ideaal voor het moderne leven. Volledig ingerichte keukens met granieten werkbladen. Topklasse badkamers met ingebouwde reservoirs en topkwaliteit sanitair. Energie-efficiëntie met aerothermisch systeem voor warm water. Pre-installatie van gekanaliseerde airconditioning, voor comfort in alle seizoenen. Aluminium ramen met dubbele beglazing voor thermische en akoestische isolatie. Versterkte veiligheidsdeur voor gemoedsrust. Parkeerplaats en berging in de kelder, inbegrepen in de prijs. Lift in het gebouw voor toegankelijkheid en comfort. Zonnepanelen op het dak om de energie-efficiëntie te verbeteren en de onderhoudskosten te verlagen. Bovendien beschikt de residentie over een gemeenschappelijk zwembad, perfect om te genieten van het mediterrane klimaat. Bevoorrechte locatie in Hondón de las Nieves Hondón de las Nieves is een stad met een grote wijntraditie, beroemd om zijn tafeldruiven met de oorsprongsbenaming Vinalopó. Het gebied wordt omringd door de Sierra de Crevillente en biedt talloze wandelpaden, natuurgebieden en een rijk cultureel en historisch aanbod. Vanuit je nieuwe huis heb je snel toegang tot de belangrijkste bezienswaardigheden in de omgeving: Vliegveld Alicante - 30 km (30 minuten met de auto). Stranden van Alicante - 35 km (35 minuten met de auto) Elche - 20 km (20 minuten met de auto) Natuurpark Crevillente - 10 km (15 minuten rijden) Golfbanen - 25 km (30 minuten rijden) Een ideaal huis aan de Costa Blanca Geniet van de rust van de Hondón Vallei, zonder de nabijheid van Alicante en Elche op te geven. Deze moderne appartementen zijn een onverslaanbare keuze voor permanente bewoning, vakantie of investering. Neem vandaag nog contact met ons op voor meer informatie of om een bezichtiging te regelen.
Exclusivos Apartamentos de Obra Nueva con Vistas a los Viñedos en Hondón de las Nieves Viviendas Modernas en un Entorno Natural Único Descubra esta nueva promoción de apartamentos en Hondón de las Nieves, un encantador pueblo situado en un hermoso valle rodeado de olivares y almendros. Este residencial ofrece 15 exclusivas viviendas de 2 y 3 dormitorios, todas diseñadas para ofrecer el máximo confort, eficiencia energética y unas impresionantes vistas a los viñedos del Vinalopó. Ubicado en el Vinalopó Medio, este tranquilo enclave es ideal para quienes buscan un estilo de vida mediterráneo relajado, con fácil acceso a la naturaleza y a todos los servicios esenciales. Características de Alta Calidad y Diseño Moderno Cada apartamento ha sido diseñado con materiales de primera calidad y una distribución funcional, ofreciendo: Espacios amplios y diáfanos, ideales para la vida moderna. Cocinas completamente amuebladas con encimeras de granito. Baños de alta gama con cisternas empotradas y sanitarios de primera calidad. Eficiencia energética con sistema de aerotermia para agua caliente. Preinstalación de aire acondicionado por conductos, garantizando confort en todas las estaciones. Ventanas de aluminio con doble acristalamiento, proporcionando aislamiento térmico y acústico. Puerta de entrada de seguridad reforzada para mayor tranquilidad. Plaza de aparcamiento y trastero en sótano, incluidos en el precio. Ascensor en el edificio, asegurando accesibilidad y comodidad. Placas solares en la azotea para mejorar la eficiencia energética y reducir costes de mantenimiento. Además, el residencial cuenta con una piscina comunitaria, perfecta para disfrutar del clima mediterráneo. Ubicación Privilegiada en Hondón de las Nieves Hondón de las Nieves es una localidad con gran tradición vinícola, famosa por su uva de mesa con denominación de origen Vinalopó. Rodeado por la Sierra de Crevillente, el entorno ofrece numerosas rutas de senderismo, espacios naturales y una rica oferta cultural e histórica. Desde su nueva vivienda, tendrá acceso rápido a los principales puntos de interés de la zona: Aeropuerto de Alicante – 30 km (30 minutos en coche) Playas de Alicante – 35 km (35 minutos en coche) Elche – 20 km (20 minutos en coche) Parque Natural de Crevillente – 10 km (15 minutos en coche) Campos de golf – 25 km (30 minutos en coche) Un Hogar Ideal en la Costa Blanca Disfrute de la tranquilidad del Valle del Hondón, sin renunciar a la proximidad de Alicante y Elche. Ya sea como residencia habitual, casa de vacaciones o inversión inmobiliaria, estos modernos apartamentos son una opción inmejorable. Contacte con nosotros hoy mismo para más información o para concertar una visita.
Appartements neufs exclusifs avec vue sur les vignobles à Hondón de las Nieves Des maisons modernes dans un cadre naturel unique Découvrez ce nouveau projet d'appartements à Hondón de las Nieves, un charmant village situé dans une belle vallée entourée d'oliviers et d'amandiers. Ce programme propose 15 maisons exclusives de 2 et 3 chambres à coucher, toutes conçues pour offrir un maximum de confort, d'efficacité énergétique et de vues imprenables sur les vignobles de Vinalopó. Située à Vinalopó Medio, cette enclave paisible est idéale pour ceux qui recherchent un mode de vie méditerranéen détendu, avec un accès facile à la nature et à tous les services essentiels. Caractéristiques de haute qualité et conception moderne Chaque appartement a été conçu avec des matériaux de qualité supérieure et un agencement fonctionnel : Des espaces de vie spacieux et ouverts, idéaux pour une vie moderne. Des cuisines entièrement équipées avec des plans de travail en granit. Des salles de bains haut de gamme avec des réservoirs de chasse d'eau intégrés et des appareils sanitaires de qualité supérieure. Efficacité énergétique grâce à un système aérothermique pour l'eau chaude. Pré-installation d'un système de climatisation, garantissant le confort en toute saison. Fenêtres en aluminium avec double vitrage, assurant une isolation thermique et acoustique. Porte d'entrée renforcée pour la tranquillité d'esprit. Place de parking et débarras en sous-sol, inclus dans le prix. Ascenseur dans l'immeuble, assurant l'accessibilité et le confort. Panneaux solaires sur le toit pour améliorer l'efficacité énergétique et réduire les coûts d'entretien. En outre, la résidence dispose d'une piscine commune, parfaite pour profiter du climat méditerranéen. Situation privilégiée à Hondón de las Nieves Hondón de las Nieves est une ville de grande tradition viticole, célèbre pour ses raisins de table portant l'appellation d'origine Vinalopó. Entourée par la Sierra de Crevillente, la région offre de nombreux sentiers de randonnée, des espaces naturels et une riche offre culturelle et historique. Depuis votre nouvelle maison, vous pourrez accéder rapidement aux principaux centres d'intérêt de la région : Aéroport d'Alicante - 30 km (30 minutes en voiture). Plages d'Alicante - 35 km (35 minutes en voiture) Elche - 20 km (20 minutes en voiture) Parc naturel de Crevillente - 10 km (15 minutes en voiture) Terrains de golf - 25 km (30 minutes en voiture) Une maison idéale sur la Costa Blanca Profitez de la tranquillité de la vallée de Hondón, sans renoncer à la proximité d'Alicante et d'Elche. Qu'il s'agisse d'une résidence permanente, d'une maison de vacances ou d'un bien d'investissement, ces appartements modernes sont un choix imbattable. Contactez-nous dès aujourd'hui pour plus d'informations ou pour organiser une visite.
Exklusive Neubauwohnungen mit Blick auf die Weinberge in Hondón de las Nieves Moderne Wohnungen in einer einzigartigen natürlichen Umgebung Entdecken Sie diese neue Wohnanlage in Hondón de las Nieves, einem charmanten Dorf in einem wunderschönen Tal, das von Oliven- und Mandelhainen umgeben ist. Das Projekt bietet 15 exklusive Wohnungen mit 2 und 3 Schlafzimmern, die alle mit einem Höchstmaß an Komfort, Energieeffizienz und einem atemberaubenden Blick auf die Weinberge von Vinalopó ausgestattet sind. In Vinalopó Medio gelegen, ist diese friedliche Enklave ideal für alle, die einen entspannten mediterranen Lebensstil suchen, mit leichtem Zugang zur Natur und allen wichtigen Dienstleistungen. Hochwertige Ausstattung und modernes Design Jede Wohnung wurde mit hochwertigen Materialien und einer funktionellen Aufteilung entworfen und bietet: Geräumige und offene Wohnbereiche, ideal für modernes Wohnen. Voll ausgestattete Küchen mit Granit-Arbeitsplatten. Erstklassige Bäder mit eingebauten Spülkästen und hochwertigen Sanitärobjekten. Energieeffizienz mit aerothermischem System für Warmwasser. Vorinstallation einer Klimaanlage, die zu allen Jahreszeiten für Komfort sorgt. Aluminiumfenster mit Doppelverglasung, die für Wärme- und Schalldämmung sorgen. Verstärkte Sicherheitseingangstür für ein sicheres Gefühl. Parkplatz und Abstellraum im Keller, im Preis inbegriffen. Aufzug im Gebäude, der für Zugänglichkeit und Komfort sorgt. Sonnenkollektoren auf dem Dach, um die Energieeffizienz zu verbessern und die Wartungskosten zu senken. Darüber hinaus verfügt die Wohnanlage über einen Gemeinschaftspool, in dem man das mediterrane Klima genießen kann. Privilegierte Lage in Hondón de las Nieves Hondón de las Nieves ist eine Stadt mit einer großen Weinbautradition, die für ihre Tafeltrauben mit der Herkunftsbezeichnung Vinalopó bekannt ist. Umgeben von der Sierra de Crevillente bietet die Gegend zahlreiche Wanderwege, Naturgebiete und ein reiches kulturelles und historisches Angebot. Von Ihrem neuen Zuhause aus haben Sie schnellen Zugang zu den wichtigsten Sehenswürdigkeiten der Region: Flughafen Alicante - 30 km (30 Minuten mit dem Auto). Die Strände von Alicante - 35 km (35 Minuten mit dem Auto) Elche - 20 km (20 Minuten mit dem Auto) Naturpark Crevillente - 10 km (15 Minuten mit dem Auto) Golfplätze - 25 km (30 Minuten Fahrt) Ein ideales Zuhause an der Costa Blanca Genießen Sie die Ruhe des Hondón-Tals, ohne auf die Nähe zu Alicante und Elche verzichten zu müssen. Ob als ständiger Wohnsitz, Ferienhaus oder Investitionsobjekt, diese modernen Wohnungen sind eine unschlagbare Wahl. Kontaktieren Sie uns noch heute für weitere Informationen oder zur Vereinbarung eines Besichtigungstermins.
Эксклюзивные апартаменты в новостройке с видом на виноградники в Хондон-де-лас-Ньевес Современные дома в уникальном природном окружении Откройте для себя новый жилой комплекс в Хондон-де-лас-Ньевес, очаровательной деревне, расположенной в красивой долине, окруженной оливковыми и миндальными рощами. В этом комплексе предлагается 15 эксклюзивных домов с 2 и 3 спальнями, спроектированных с учетом максимального комфорта, энергоэффективности и потрясающих видов на виноградники Виналопо. Расположенный в Vinalopó Medio, этот тихий анклав идеально подходит для тех, кто ищет спокойный средиземноморский образ жизни, с легким доступом к природе и всем необходимым услугам. Высококачественные характеристики и современный дизайн Каждая квартира спроектирована с использованием высококачественных материалов и функциональной планировки: Просторные жилые помещения открытой планировки, идеально подходящие для современной жизни. Полностью оборудованные кухни с гранитными столешницами. Ванные комнаты со встроенными бачками и высококачественной сантехникой. Энергоэффективность с аэротермальной системой для горячей воды. Предварительная установка канального кондиционера, гарантирующего комфорт в любое время года. Алюминиевые окна с двойным остеклением, обеспечивающие тепло- и звукоизоляцию. Усиленная бронированная входная дверь для спокойствия. Парковочное место и кладовая в подвале, включенные в стоимость. Лифт в здании, обеспечивающий доступность и комфорт. Солнечные панели на крыше для повышения энергоэффективности и снижения эксплуатационных расходов. Кроме того, в жилом комплексе есть общий бассейн, идеально подходящий для наслаждения средиземноморским климатом. Привилегированное расположение в Хондон-де-лас-Ньевес Хондон-де-лас-Ньевес - город с богатыми винодельческими традициями, знаменитый своим столовым виноградом с наименованием места происхождения Виналопо. Окруженный горами Сьерра-де-Кревильенте, этот район предлагает многочисленные пешеходные тропы, природные зоны и богатое культурное и историческое предложение. Из вашего нового дома вы сможете быстро добраться до основных достопримечательностей этого района: Аэропорт Аликанте - 30 км (30 минут на машине). Пляжи Аликанте - 35 км (35 минут на машине) Эльче - 20 км (20 минут на машине) Природный парк Кревильенте - 10 км (15 минут езды) Поля для гольфа - 25 км (30 минут езды) Идеальный дом на побережье Коста Бланка Наслаждайтесь спокойствием долины Хондон, не отказываясь от близости к Аликанте и Эльче. Будь то постоянное место жительства, дом для отдыха или инвестиционная недвижимость, эти современные квартиры - непревзойденный выбор. Свяжитесь с нами сегодня, чтобы получить дополнительную информацию или договориться о просмотре.
Exklusiva nybyggda lägenheter med utsikt över vingårdarna i Hondón de las Nieves Moderna hem i en unik naturmiljö Upptäck detta nya lägenhetsprojekt i Hondón de las Nieves, en charmig by som ligger i en vacker dal omgiven av oliv- och mandelodlingar. Här finns 15 exklusiva bostäder med 2 och 3 sovrum, alla utformade för att erbjuda maximal komfort, energieffektivitet och fantastisk utsikt över Vinalopós vingårdar. Denna fridfulla enklav ligger i Vinalopó Medio och är idealisk för dem som söker en avslappnad livsstil i Medelhavsområdet, med enkel tillgång till naturen och alla viktiga tjänster. Hög kvalitet och modern design Varje lägenhet har utformats med material av högsta kvalitet och en funktionell layout, som erbjuder: Rymliga vardagsrum med öppen planlösning, perfekt för ett modernt boende. Fullt utrustade kök med bänkskivor i granit. Toppmoderna badrum med inbyggda cisterner och sanitetsartiklar av högsta kvalitet. Energieffektivitet med aerotermiskt system för varmvatten. Förinstallation av luftkonditionering med kanaler, vilket garanterar komfort under alla årstider. Aluminiumfönster med dubbla glasrutor som ger termisk och akustisk isolering. Förstärkt säkerhetsdörr för sinnesfrid. Parkeringsplats och förråd i källaren, ingår i priset. Hiss i byggnaden, vilket garanterar tillgänglighet och komfort. Solpaneler på taket för att förbättra energieffektiviteten och minska underhållskostnaderna. Dessutom har bostadsområdet en gemensam pool, perfekt för att njuta av Medelhavsklimatet. Privilegierat läge i Hondón de las Nieves Hondón de las Nieves är en stad med en stor vinodlingstradition, känd för sina bordsdruvor med ursprungsbeteckningen Vinalopó. Området är omgivet av Sierra de Crevillente och erbjuder många vandringsleder, naturområden och ett rikt kulturellt och historiskt utbud. Från ditt nya hem har du snabb tillgång till de viktigaste intressanta platserna i området: Alicantes flygplats - 30 km (30 minuter med bil). Alicantes stränder - 35 km (35 minuter med bil) Elche - 20 km (20 minuter med bil) Crevillente naturpark - 10 km (15 minuters bilresa) Golfbanor - 25 km (30 minuters bilresa) Ett idealiskt hem på Costa Blanca Njut av lugnet i Hondón-dalen, utan att ge upp närheten till Alicante och Elche. Oavsett om det är som permanent bostad, fritidshus eller investeringsobjekt är dessa moderna lägenheter ett oslagbart val. Kontakta oss idag för mer information eller för att ordna en visning.
... meer >>

Vraag om meer info

Wij spreken:

1033 1031 1043

Contact informatie

Door te klikken op "Versturen" accepteert u onze Privacy Policy

* = Verplicht

Aanbieder

}