Terug

Printen

Stuur naar een vriend

Sla op als favoriet

602-1-49998330714832026.jpg 602-2-49998331714832026.jpg 602-3-49998331714832026.jpg 602-4-49998332714832026.jpg 602-5-49998332714832026.jpg 602-6-49998332714832026.jpg 602-7-49998333714832026.jpg
Loading...

Bouwgrond te koop Betlem

Object-ID: 499983

€ 195.000

Omschrijving

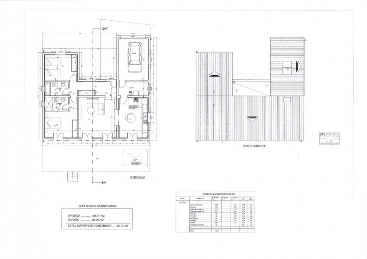
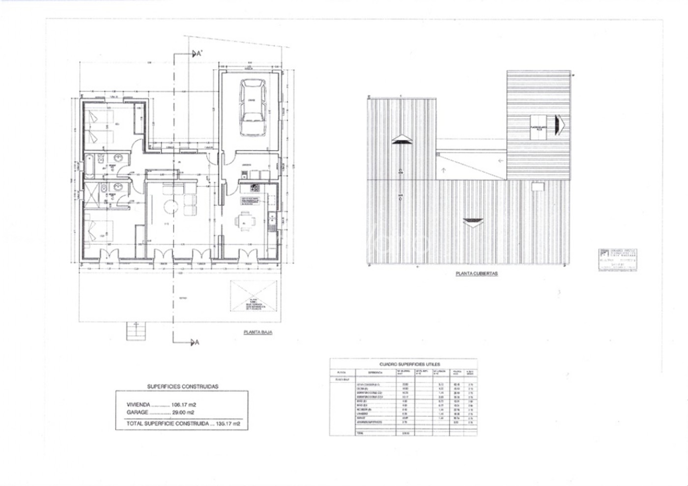
This land parcel to be built on is located in Betlem around 500 metre’s distance from the sea. After the lifting of a temporary construction stop in this zone, the building regulations permit a detached single-storey house with living and dining room, kitchen, two bedrooms, two bathrooms, laundry room and garage. Betlem is a quiet residential estate by the sea and an ideal starting point for hill-walking in the Llevant nature reserve.
Esta parcela se encuentra en Betlem, a unos 500 metros en línea recta del mar. Despúes del levantamiento de una parada temporal de construcción en esta zona, el reglamento de edificación permite la construcción de una casa unifamiliar de una sola planta con sala y comedor, cocina, dos dormitorios, dos baños, lavadero y garaje. Betlem es una urbanización tranquila junto al mar y un punto de partida ideal para hacer caminatas por la reserva natural de Llevant.
Dieses Baugrundstück befindet sich in Betlem ca. 500 m Luftlinie vom Meer entfernt. Es gibt ein Bauprojekt für ein freistehendes ebenerdiges Einfamilienhaus mit Wohn- und Esszimmer, Küche, zwei Schlafzimmer, zwei Badezimmer, Waschküche und Garage. Betlem ist eine ruhige Urbanisation am Meer und idealer Ausgangspunkt für Wanderungen durch das Naturschutzgebiet Levante.

Vraag om meer info

Wij spreken:

1034 1033 1031

Contact informatie

Door te klikken op "Versturen" accepteert u onze Privacy Policy

* = Verplicht

Aanbieder

}