Back

Print

Send to a friend

Save as favourite

565-1-6136323553162932026.jpg 565-2-6136323653162932026.jpg 565-3-6136323753162932026.jpg 565-4-6136323753162932026.jpg 565-5-6136323853162932026.jpg
Loading...

Apartment for sale Hondón de las Nieves

Object-ID: 613632

€175,000

Specifications

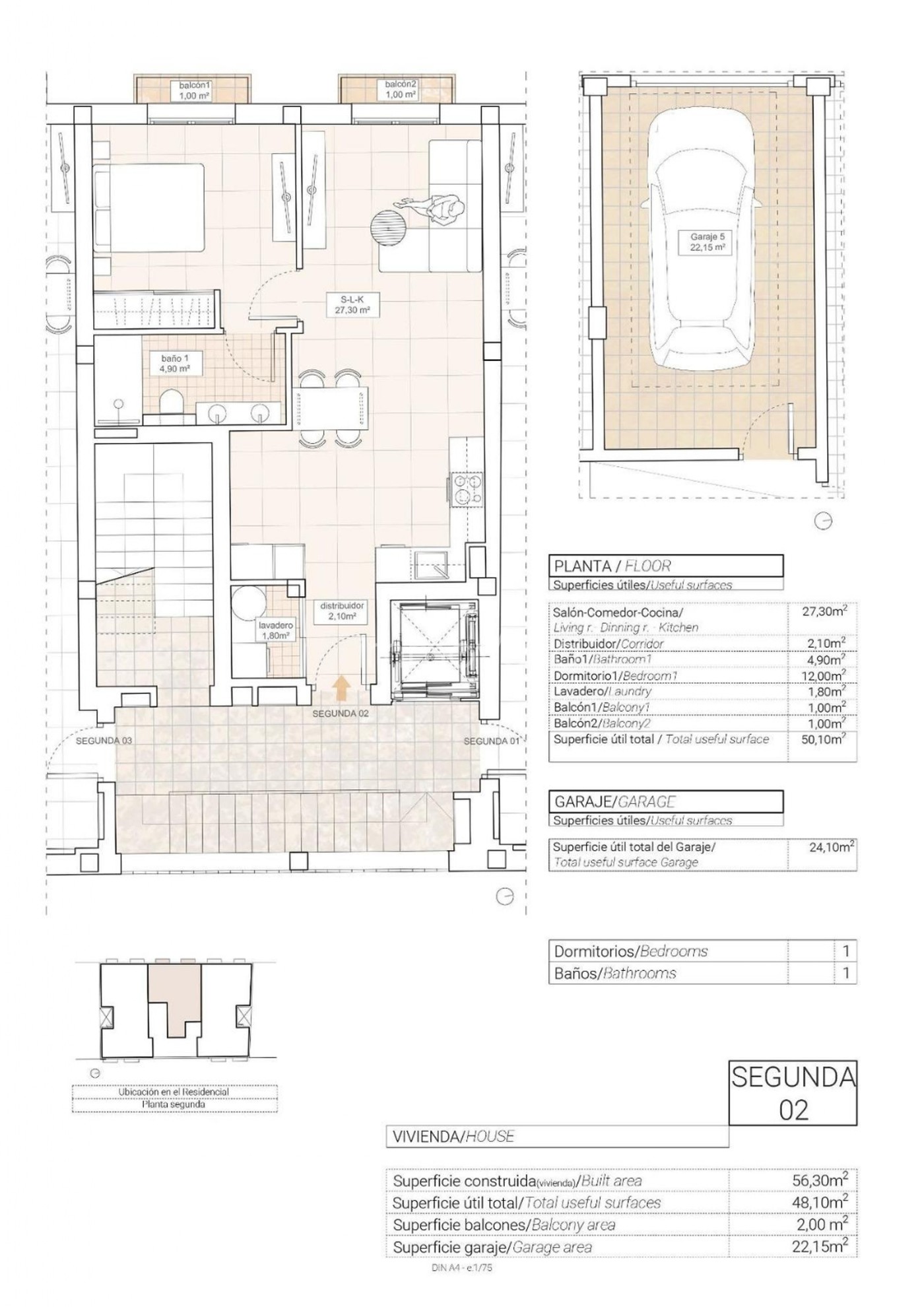
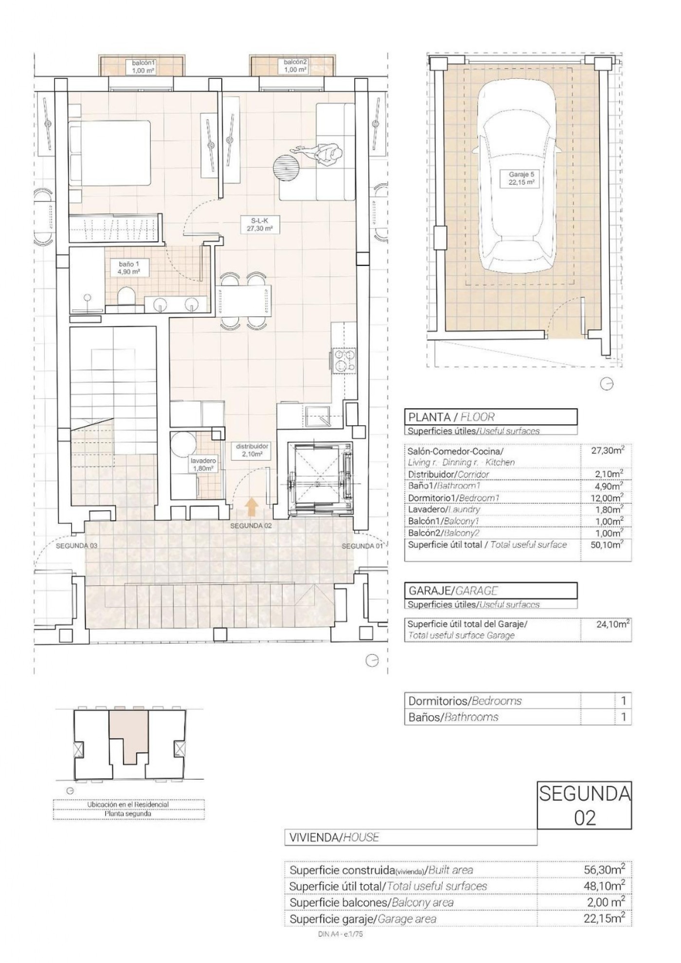
Bedrooms: 1

Bathrooms: 1

Construction: New build

Built size: 56 m2

Type: Middle floor apartment

Description

Modern Apartments with Stunning Vineyard Views in Hondón de las Nieves Stylish New-Build Apartments in a Peaceful Valley Setting Discover these contemporary apartments in Hondón de las Nieves, a charming town nestled in a picturesque valley surrounded by olive groves and almond trees. This exclusive residential complex offers 1, 2, and 3-bedroom apartments, all designed to provide comfort, energy efficiency, and breathtaking views of the Vinalopó vineyards. Located in the Vinalopó Medio region, this tranquil area is perfect for those seeking a relaxed Mediterranean lifestyle with easy access to nature and essential services. High-Quality Features for Modern Living Each apartment is built with premium materials and finishes, ensuring both style and functionality: Spacious interiors with open-plan layouts. Fully furnished kitchens with granite countertops. High-end bathrooms with built-in cisterns and top-quality sanitary fittings. Energy-efficient design with aerothermal water heating. Pre-installed ducted air conditioning for year-round comfort. Double-glazed aluminum windows with thermal insulation. Reinforced security entrance door for added peace of mind. Private garage on the ground floor included. Elevator access for convenience. Additionally, solar panels are installed on the rooftop to enhance energy efficiency and reduce utility costs. Prime Location in Hondón de las Nieves Hondón de las Nieves is a charming Spanish village known for its wine production, traditional culture, and scenic landscapes. The town features historic buildings, local markets, and natural walking trails, making it a fantastic location for both permanent living and holiday retreats. This new development is situated in a peaceful yet well-connected area, offering easy access to essential services and key locations: Alicante Airport – 30 km (30-minute drive) Beaches of Alicante – 35 km (35-minute drive) Elche – 20 km (20-minute drive) Crevillente Natural Park – 10 km (15-minute drive) Golf Courses – 25 km (30-minute drive) Your Perfect Home in the Heart of Alicante’s Countryside Enjoy the tranquility of the Hondón Valley while staying close to the vibrant cities of Alicante and Elche. Whether you’re looking for a holiday home, an investment property, or a peaceful place to live year-round, these modern apartments are the perfect choice. Contact us today for more information or to schedule a viewing!
Moderne appartementen met prachtig uitzicht op de wijngaard in Hondón de las Nieves Stijlvolle nieuwbouwappartementen in een rustige vallei Ontdek deze moderne appartementen in Hondón de las Nieves, een charmant stadje in een schilderachtige vallei omringd door olijfbomen en amandelbomen. Dit exclusieve wooncomplex biedt appartementen met 1, 2 en 3 slaapkamers, allemaal ontworpen om comfort, energie-efficiëntie en een adembenemend uitzicht op de wijngaarden van de Vinalopó te bieden. Dit rustige gebied ligt in de regio Vinalopó Medio en is perfect voor wie op zoek is naar een ontspannen mediterrane levensstijl met gemakkelijke toegang tot de natuur en essentiële diensten. Hoogwaardige voorzieningen voor modern wonen Elk appartement is gebouwd met eersteklas materialen en afwerkingen, waardoor zowel stijl als functionaliteit gegarandeerd zijn: Ruime interieurs met open indelingen. Volledig ingerichte keukens met granieten werkbladen. Hoogwaardige badkamers met ingebouwde reservoirs en sanitair van topkwaliteit. Energie-efficiënt ontwerp met aerothermische waterverwarming. Vooraf geïnstalleerde airconditioning voor comfort het hele jaar door. Aluminium ramen met dubbele beglazing en thermische isolatie. Versterkte beveiligde toegangsdeur voor extra gemoedsrust. Privégarage op de begane grond inbegrepen. Lift toegang voor gemak. Bovendien zijn er zonnepanelen geïnstalleerd op het dak om de energie-efficiëntie te verbeteren en de energiekosten te verlagen. Toplocatie in Hondón de las Nieves Hondón de las Nieves is een charmant Spaans dorp dat bekend staat om zijn wijnproductie, traditionele cultuur en schilderachtige landschappen. Het dorp heeft historische gebouwen, lokale markten en natuurlijke wandelpaden, waardoor het een fantastische locatie is voor zowel permanente bewoning als vakantie. Dit nieuwe project ligt in een rustige maar goed verbonden omgeving, met gemakkelijke toegang tot essentiële diensten en belangrijke locaties: Vliegveld Alicante - 30 km (30 minuten rijden) Stranden van Alicante - 35 km (35 minuten rijden) Elche - 20 km (20 minuten rijden) Natuurpark Crevillente - 10 km (15 minuten rijden) Golfbanen - 25 km (30 minuten rijden) Je perfecte thuis in het hart van het platteland van Alicante Geniet van de rust van de Hondón Vallei terwijl je dicht bij de bruisende steden Alicante en Elche verblijft. Of je nu op zoek bent naar een vakantiehuis, een vastgoedbelegging of een rustige plek om het hele jaar door te wonen, deze moderne appartementen zijn de perfecte keuze. Neem vandaag nog contact met ons op voor meer informatie of om een bezichtiging te plannen!
Apartamentos modernos con impresionantes vistas a los viñedos en Hondón de las Nieves Elegantes apartamentos de nueva construcción en un apacible valle Descubra estos modernos apartamentos en Hondón de las Nieves, una encantadora localidad enclavada en un pintoresco valle rodeado de olivares y almendros. Este exclusivo complejo residencial ofrece apartamentos de 1, 2 y 3 dormitorios, todos ellos diseñados para proporcionar confort, eficiencia energética e impresionantes vistas a los viñedos del Vinalopó. Situada en la comarca del Vinalopó Medio, esta tranquila zona es perfecta para quienes buscan un estilo de vida mediterráneo relajado con fácil acceso a la naturaleza y a los servicios esenciales. Características de alta calidad para una vida moderna Cada apartamento está construido con materiales y acabados de primera calidad, garantizando tanto estilo como funcionalidad: Amplios interiores con distribuciones diáfanas. Cocinas totalmente amuebladas con encimeras de granito. Baños de alta gama con cisternas empotradas y sanitarios de primera calidad. Diseño energéticamente eficiente con calefacción de agua por aerotermia. Preinstalación de aire acondicionado por conductos para mayor comodidad durante todo el año. Ventanas de aluminio con doble acristalamiento y aislamiento térmico. Puerta de entrada de seguridad reforzada para mayor tranquilidad. Garaje privado en la planta baja incluido. Acceso en ascensor para mayor comodidad. Además, los paneles solares están instalados en la azotea para mejorar la eficiencia energética y reducir los costos de servicios públicos. Ubicación privilegiada en Hondón de las Nieves Hondón de las Nieves es un encantador pueblo español conocido por su producción de vino, su cultura tradicional y sus paisajes pintorescos. La ciudad cuenta con edificios históricos, mercados locales y senderos naturales, por lo que es un lugar fantástico tanto para la vida permanente y retiros de vacaciones. Esta nueva promoción está situada en una zona tranquila pero bien comunicada, que ofrece fácil acceso a servicios esenciales y lugares clave: Aeropuerto de Alicante - 30 km (30 minutos en coche) Playas de Alicante - 35 km (35 minutos en coche) Elche - 20 km (20 minutos en coche) Parque Natural de Crevillente - 10 km (15 minutos en coche) Campos de Golf - 25 km (30 minutos en coche) Su hogar perfecto en el corazón de la campiña alicantina Disfrute de la tranquilidad del Valle del Hondón mientras permanece cerca de las vibrantes ciudades de Alicante y Elche. Tanto si busca una casa de vacaciones, una inversión inmobiliaria o un lugar tranquilo para vivir todo el año, estos modernos apartamentos son la elección perfecta. Póngase en contacto con nosotros hoy mismo para obtener más información o para concertar una visita.
Appartements modernes avec vue imprenable sur les vignobles à Hondón de las Nieves Appartements neufs et élégants dans une vallée paisible Découvrez ces appartements contemporains à Hondón de las Nieves, une charmante ville nichée dans une vallée pittoresque entourée d'oliveraies et d'amandiers. Ce complexe résidentiel exclusif propose des appartements de 1, 2 et 3 chambres, tous conçus pour offrir confort, efficacité énergétique et vues imprenables sur les vignobles du Vinalopó. Située dans la région de Vinalopó Medio, cette zone tranquille est parfaite pour ceux qui recherchent un style de vie méditerranéen décontracté avec un accès facile à la nature et aux services essentiels. Des caractéristiques de haute qualité pour une vie moderne Chaque appartement est construit avec des matériaux et des finitions de première qualité, garantissant à la fois style et fonctionnalité : Des intérieurs spacieux avec des plans ouverts. Des cuisines entièrement meublées avec des comptoirs en granit. Salles de bains haut de gamme avec réservoirs de chasse d'eau intégrés et équipements sanitaires de qualité supérieure. Conception économe en énergie avec chauffage de l'eau par aérothermie. Climatisation préinstallée pour un confort tout au long de l'année. Fenêtres en aluminium à double vitrage avec isolation thermique. Porte d'entrée renforcée pour une plus grande tranquillité d'esprit. Garage privé au rez-de-chaussée inclus. Accès par ascenseur pour plus de commodité. En outre, des panneaux solaires sont installés sur le toit pour améliorer l'efficacité énergétique et réduire les coûts des services publics. Emplacement privilégié à Hondón de las Nieves Hondón de las Nieves est un charmant village espagnol connu pour sa production de vin, sa culture traditionnelle et ses paysages pittoresques. La ville comprend des bâtiments historiques, des marchés locaux et des sentiers de randonnée naturels, ce qui en fait un lieu fantastique pour la vie permanente et les retraites de vacances. Ce nouveau projet est situé dans un quartier paisible mais bien desservi, offrant un accès facile aux services essentiels et aux principaux sites : Aéroport d'Alicante - 30 km (30 minutes en voiture) Plages d'Alicante - 35 km (35 minutes en voiture) Elche - 20 km (20 minutes en voiture) Parc naturel de Crevillente - 10 km (15 minutes en voiture) Terrains de golf - 25 km (30 minutes en voiture) Votre maison parfaite au cœur de la campagne d'Alicante Profitez de la tranquillité de la vallée de Hondón tout en restant à proximité des villes animées d'Alicante et d'Elche. Que vous soyez à la recherche d'une maison de vacances, d'un bien d'investissement ou d'un endroit paisible où vivre toute l'année, ces appartements modernes sont le choix idéal. Contactez-nous dès aujourd'hui pour plus d'informations ou pour planifier une visite !
Moderne Apartments mit atemberaubendem Blick auf die Weinberge in Hondón de las Nieves Stilvolle Neubauwohnungen in einem friedlichen Tal Entdecken Sie diese modernen Apartments in Hondón de las Nieves, einer charmanten Stadt, die in einem malerischen Tal liegt, umgeben von Olivenhainen und Mandelbäumen. Diese exklusive Wohnanlage bietet Apartments mit 1, 2 und 3 Schlafzimmern, die alle auf Komfort, Energieeffizienz und einen atemberaubenden Blick auf die Weinberge des Vinalopó ausgelegt sind. In der Region Vinalopó Medio gelegen, ist diese ruhige Gegend ideal für alle, die einen entspannten mediterranen Lebensstil mit einfachem Zugang zur Natur und zu den wichtigsten Dienstleistungen suchen. Hochwertige Ausstattung für modernes Wohnen Jede Wohnung ist mit hochwertigen Materialien und Oberflächen ausgestattet, um sowohl Stil als auch Funktionalität zu gewährleisten: Geräumige Innenräume mit offenen Grundrissen. Vollständig eingerichtete Küchen mit Granitarbeitsplatten. Hochwertige Bäder mit eingebauten Spülkästen und erstklassigen Sanitäranlagen. Energieeffizientes Design mit aerothermischer Wasserheizung. Vorinstallierte kanalisierte Klimaanlage für ganzjährigen Komfort. Doppelt verglaste Aluminiumfenster mit Wärmedämmung. Verstärkte Sicherheitseingangstür für zusätzlichen Seelenfrieden. Private Garage im Erdgeschoss inklusive. Zugang zum Aufzug für mehr Komfort. Zusätzlich sind auf dem Dach Sonnenkollektoren installiert, um die Energieeffizienz zu verbessern und die Betriebskosten zu senken. Erstklassige Lage in Hondón de las Nieves Hondón de las Nieves ist ein charmantes spanisches Dorf, das für seine Weinproduktion, seine traditionelle Kultur und seine malerischen Landschaften bekannt ist. Die Stadt verfügt über historische Gebäude, örtliche Märkte und natürliche Wanderwege, was sie zu einem fantastischen Standort sowohl für das dauerhafte Wohnen als auch für Ferienaufenthalte macht. Dieses Neubaugebiet befindet sich in einer ruhigen und dennoch gut angebundenen Gegend und bietet einfachen Zugang zu den wichtigsten Dienstleistungen und Orten: Flughafen Alicante - 30 km (30 Autominuten) Strände von Alicante - 35 km (35 Autominuten) Elche - 20 km (20 Autominuten) Naturpark Crevillente - 10 km (15 Autominuten) Golfplätze - 25 km (30 Autominuten) Ihr perfektes Zuhause im Herzen der Landschaft von Alicante Genießen Sie die Ruhe des Hondón-Tals und wohnen Sie gleichzeitig in der Nähe der pulsierenden Städte Alicante und Elche. Ganz gleich, ob Sie ein Feriendomizil, eine Anlageimmobilie oder einen ruhigen Ort suchen, an dem Sie das ganze Jahr über leben können, diese modernen Apartments sind die perfekte Wahl. Kontaktieren Sie uns noch heute für weitere Informationen oder um einen Besichtigungstermin zu vereinbaren!
Современные апартаменты с потрясающим видом на виноградники в Хондон-де-лас-Ньевес Стильные апартаменты новой постройки в тихой долине Откройте для себя эти современные квартиры в Хондон-де-лас-Ньевес, очаровательном городке, расположенном в живописной долине, окруженной оливковыми рощами и миндальными деревьями. Этот эксклюзивный жилой комплекс предлагает квартиры с 1, 2 и 3 спальнями, спроектированные с учетом комфорта, энергоэффективности и захватывающих дух видов на виноградники Виналопо. Расположенный в регионе Виналопо Медио, этот спокойный район идеально подходит для тех, кто ищет спокойный средиземноморский образ жизни с легким доступом к природе и основным услугам. Высококачественные характеристики для современной жизни Каждая квартира построена с использованием первоклассных материалов и отделки, что обеспечивает стиль и функциональность: Просторные интерьеры с открытой планировкой. Полностью меблированные кухни с гранитными столешницами. Высокотехнологичные ванные комнаты со встроенными бачками и высококачественной сантехникой. Энергоэффективный дизайн с аэротермальным нагревом воды. Предварительно установленный канальный кондиционер для круглогодичного комфорта. Алюминиевые окна с двойным остеклением и теплоизоляцией. Усиленная бронированная входная дверь для дополнительного спокойствия. Частный гараж на первом этаже. Лифт для удобства. Кроме того, на крыше установлены солнечные батареи для повышения энергоэффективности и снижения коммунальных расходов. Удачное расположение в Хондон-де-лас-Ньевес Хондон-де-лас-Ньевес - очаровательная испанская деревня, известная своим виноделием, традиционной культурой и живописными пейзажами. В городе есть исторические здания, местные рынки и природные пешеходные тропы, что делает его фантастическим местом как для постоянного проживания, так и для отдыха. Этот новый комплекс расположен в тихом, но хорошо связанном районе, предлагая легкий доступ к основным услугам и ключевым местам: Аэропорт Аликанте - 30 км (30 минут езды) Пляжи Аликанте - 35 км (35 минут езды) Эльче - 20 км (20 минут езды) Природный парк Кревильенте - 10 км (15 минут езды) Поля для гольфа - 25 км (30 минут езды) Ваш идеальный дом в сердце сельской местности Аликанте Наслаждайтесь спокойствием долины Хондон, оставаясь рядом с оживленными городами Аликанте и Эльче. Если вы ищете дом для отдыха, инвестиционную недвижимость или спокойное место для круглогодичного проживания, эти современные апартаменты - идеальный выбор. Свяжитесь с нами сегодня, чтобы получить дополнительную информацию или договориться о просмотре!
Moderna lägenheter med fantastisk utsikt över vingårdar i Hondón de las Nieves Stilfulla nybyggda lägenheter i en fridfull dalmiljö Upptäck dessa moderna lägenheter i Hondón de las Nieves, en charmig stad som ligger inbäddad i en pittoresk dal omgiven av olivlundar och mandelträd. Detta exklusiva bostadskomplex erbjuder lägenheter med 1, 2 och 3 sovrum, alla utformade för att ge komfort, energieffektivitet och hisnande utsikt över Vinalopó-vingårdarna. Detta lugna område ligger i Vinalopó Medio-regionen och är perfekt för dem som söker en avslappnad medelhavslivsstil med enkel tillgång till naturen och viktiga tjänster. Högkvalitativa funktioner för ett modernt boende Varje lägenhet är byggd med förstklassiga material och ytbehandlingar, vilket garanterar både stil och funktionalitet: Rymliga interiörer med öppna planlösningar. Fullt möblerade kök med bänkskivor i granit. Avancerade badrum med inbyggda cisterner och sanitetsarmaturer av högsta kvalitet. Energieffektiv design med aerotermisk vattenuppvärmning. Förinstallerad kanaliserad luftkonditionering för komfort året runt. Dubbelglasade aluminiumfönster med värmeisolering. Förstärkt säkerhetsdörr för extra sinnesfrid. Privat garage på bottenvåningen ingår. Tillgång till hiss för bekvämlighet. Dessutom är solpaneler installerade på taket för att förbättra energieffektiviteten och minska kostnaderna för el och vatten. Förstklassigt läge i Hondón de las Nieves Hondón de las Nieves är en charmig spansk by som är känd för sin vinproduktion, traditionella kultur och natursköna landskap. Staden har historiska byggnader, lokala marknader och naturliga vandringsleder, vilket gör det till en fantastisk plats för både permanent boende och semesterresor. Detta nya bostadsområde ligger i ett lugnt område med goda förbindelser och erbjuder enkel tillgång till viktiga tjänster och viktiga platser: Alicantes flygplats - 30 km (30 minuters bilresa) Stränderna i Alicante - 35 km (35 minuters bilresa) Elche - 20 km (20 minuters bilresa) Crevillente naturpark - 10 km (15 minuters bilresa) Golfbanor - 25 km (30 minuters bilresa) Ditt perfekta hem i hjärtat av Alicantes landsbygd Njut av lugnet i Hondón-dalen samtidigt som du bor nära de livliga städerna Alicante och Elche. Oavsett om du letar efter ett fritidshus, en investeringsfastighet eller en lugn plats att bo på året runt, är dessa moderna lägenheter det perfekta valet. Kontakta oss idag för mer information eller för att boka en visning!
... more >>

Ask for more info

We speak:

1033 1031 1043

Contact details

By clicking on "Send" you accept our Privacy Policy

* = Required

Provider

}